Welcome to...

17041 Labrador St, Northridge, CA 91325

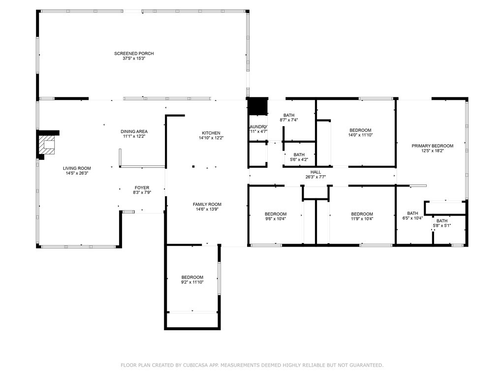
Discover this impeccably remodeled Mid-Century Modern gem, lovingly maintained by the same owners since 1977 sitting on a HUGE lot of 15,919 square feet. Main home features 4 bedrooms and 3 baths with over 2,100 square feet. Blending timeless design with thoughtful upgrades, this stunning home has a newer roof, newer paid-off solar panels, central heat and air, copper plumbing, dual pane windows, updated electrical panels, automatic skylights, and much more. Resort style, large, remodeled pool and deck perfect for relaxing or entertaining. Additional 600 square feet, not included in homes square footage, enclosed patio doubles as a game room and family room. The lush, beautifully landscaped grounds offer abundant outdoor entertaining space, creating your own private oasis. Home also includes a detached, stylish 2-bedroom, 1-bathroom ADU of almost 700 square feet—fully remodeled—adds incredible flexibility for visitors, rental income, or a private retreat. ADU has a separate address and a separate gas meter. Right down the street from the highly desirable Waldorf Institute of Southern California and Balboa Magnet. This is truly a must-see to appreciate the care, quality, and unique charm this property offers. A special retreat.

Listed by Hosep Stepanian • DRE #01780506 • Brokerage DRE #01780506 • Broker Intrust Real Estate-Hosep Stepanian • 818-426-1117

Property Details

6

Bedrooms

4

Bathrooms

2,767

Sq Ft

Property Inquiry

Image 1 Image 2 Image 3 Image 4